ERFOLGREICH VERMARKTET – BITTE NICHT MEHR ANFRAGEN!
58710
Menden
Menden-Lendringsen: 3-Zimmer-Eigentumswohnung mit Balkon!
1
3
0
– VERKAUFT AM 14.03.2024 –
Objekt: Walzweg 1 d, 58710 Menden-Lendringsen
Zusammen mit zwei weiteren Wohnungen im Haus als Gesamtpaket verkauft!
Ob als Anlageimmobilie oder zur Selbstnutzung – beide Varianten sind erstrebenswert!
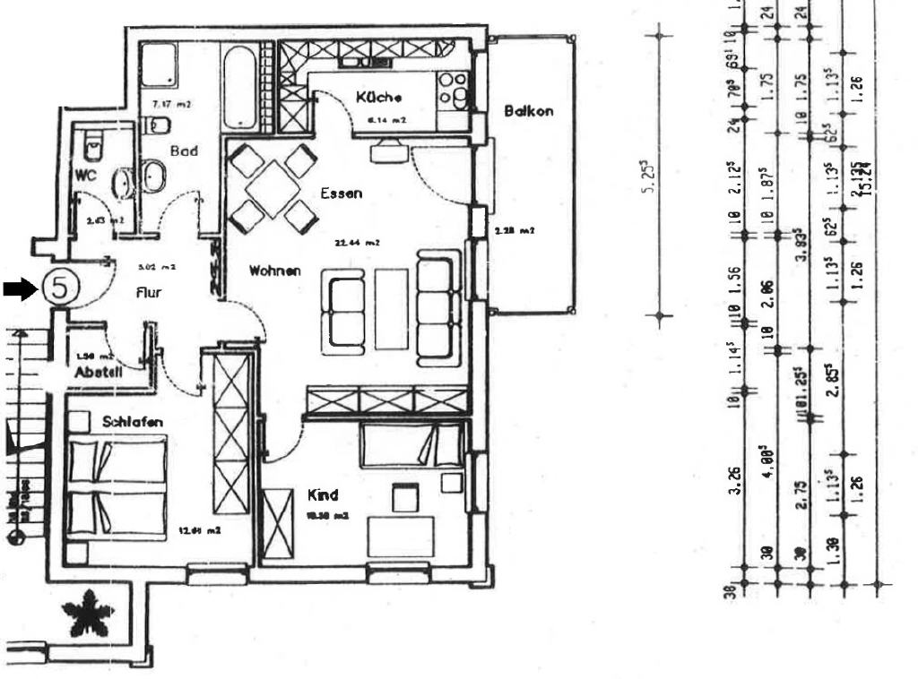
Verkauft werden soll diese 3-Zimmer-Eigentumswohnung mit ca. 70 m² Wohnfläche im 1. Obergeschoss eines 15-Parteien-Hauses.
Das Gebäude steht auf einem etwa 1.054 m² großen Grundstücksareal im Erbbaurecht. Gemäß Teilungserklärung liegt der Erbbaurechtsanteil dieser Wohnung bei 73.759 / 1.000.000.
Der Jahresanteil am Erbbauzins beläuft sich gemäß Jahresabrechnung 2022 auf EUR 313,10.
– KOMPAKT ZUSAMMENGEFASST –
Aufteilung:
– Wohnbereich mit Zugang zum überdachten Balkon
– Schlafzimmer
– Kinderzimmer (alternativ: Home-Office oder Gästezimmer)
– Küche inkl. Einbauküche
– Diele
– Abstellraum
– Innenliegendes Duschbad mit Waschbecken und WC
– Gäste-WC
Laut Teilungserklärung gehört zu dieser Wohnung auch ein eigener Kellerabstellraum.
Aktuelle Oberböden:
Helle Fliesen in Diele, Abstellraum, Gäste-WC, Bad und Küche.
Laminat im Wohnbereich und in beiden Schlafräumen.
Fenster:
Kunststoff – doppelt verglast – mit Rollläden zum Verdunkeln.
Gemeinschaftsräume im Kellergeschoss:
Fahrradabstellraum im Bereich der Tiefgarage, Wasch- und Trockenraum.
Stellplatz:
Laut E-Mail der Hausverwaltung vom 22.03.2023 ist für diese Wohnung ein rechtlich geltendes Sondernutzungsrecht an einem Tiefgaragenstellplatz im Grundbuch vermerkt. Die Parkflächen im Außenbereich können von allen Eigentümern bzw. Bewohnern genutzt werden.
Erneuerung der Heizungsanlage:
In einem Schreiben vom 21.08.2023 seitens der Hausverwaltung wurde uns mitgeteilt, dass die Erneuerung der Heizungsanlage durch eine entsprechende Fachfirma – gemäß eines Kostenvoranschlags in Höhe von EUR 23.786,14 – mehrheitlich von der Eigentümergemeinschaft per Umlaufbeschluss angenommen wurde.
Monatliches Hausgeld inkl. Instandhaltungsrücklage:
EUR 265,00 seit dem 01.07.2023 (gemäß Wirtschaftsplan 2023).
Jahresanteil an der Instandhaltungsrücklage:
EUR 577,36 (laut Wirtschaftsplan 2023).
Weitere Eindrücke von der Wohnung erhalten Sie bei den bereit gestellten Innenaufnahmen.
Lage:
Im Ortsteil Lendringsen gibt es alles für den täglichen Bedarf sowie Ärzte, eine Apotheke und eine Poststelle. Schulen wie Kindergärten sind von hier aus mit dem Auto oder per (Schul-()Bus gut zu erreichen. Die nächstgelegene Autobahnauffahrt liegt nur wenige Fahrminuten entfernt.
Pikant:
Als Investor haben Sie die Möglichkeit zwei weitere Eigentumswohnungen in derselben Wohnanlage käuflich zu erwerben. Quasi „im Paket“! Die anderen beiden Wohnungen finden Sie – neben dieser hier – auf unserer Webseite.
Neugierig geworden? Gern zeigen wir Ihnen diese Immobilie im Rahmen einer gemeinsamen Besichtigung. Wir freuen uns schon auf Ihre Kontaktaufnahme.
Sie möchten auch Ihre Eigentumswohnung verkaufen? » Hier können Sie uns Ihre Immobilie online anbieten.
Korte Immobilien Fröndenberg – Immobilienmakler Fröndenberg und Umgebung.
ERFOLGREICH VERMARKTET – BITTE NICHT MEHR ANFRAGEN!
Teilen auf
Objektangaben
Objektnummer:12170972
Wohnfläche:70,48 m²
Grundstücksfläche:1.054,00 m²
Zimmer:3,0
Balkone:1,0
Stellplätze:1,0
Kosten
Käuferprovision: 3.57
Ausstattung
Baujahr:2000
Ausweistyp:Energieverbrauchsausweis
Effizienzklasse:C
Gültig bis:01.11.2028
Ihr Ansprechpartner

Manuel Korte




























